Navigation überspringen
Wohnung gesucht?
Zuhause gefunden!

Altengerechtes Wohnen in Seelze

Objektbeschreibung:
Objektreferenz: 1.340.314

Sicher und komfortabel Wohnen mit Service im Wohnpark Weizenkamp. Die Wohnung liegt in einer schönen Grünanlage im Herzen von Seelze mit ländlichem Charakter. Das Stadtzentrum mit Einkaufsmöglichkeiten, Ärzten und anderen Dienstleistungsunternehmen ist fußläufig erreichbar. S- Bahnhof zur Fahrt mit den öffentlichen Verkehrsmitteln, 8 Min. bis Hannover City - 10 Min. bis Wunstorf. Vielfältige Freizeit- und Bildungsangebote, wie z.B. die Kristall-Therme. Erholungsgebiet rund um die Wasserstadt Seelze mit dem Fahrrad erreichbar.

Servicewohnen im Wohnpark Weizenkamp. Barrierearm wohnen mit allen Extras. Gehobene Ausstattung mit moderner Technik. Einbauküche, Balkon, Aufzug, Laminatboden und Concierge mit Fahrdienst sind in der Miete enthalten.

Für die Aufnahme in die Genossenschaft ist mit dem Beitritt eine Servicepauschale von 85 EUR im Zusammenhang mit der Mitgliedsaufnahme zu entrichten.
Sonstiges:

Hinweis zur Bewerbung

:
Um Ihnen den bestmöglichen Service zu bieten, können Sie sich bei uns digital bewerben. Kopieren Sie den untenstehenden Link in die Adresszeile Ihres Browsers und folgen Sie der Anleitung.

tenant.immomio.com/apply/f4033f37-f91b-4685-a059-a606dfef2bfd

Details

Objektnr. extern:
1.340.314-c1de72d5-f358-4b3f-a05c-01a380a9ac8a
Straße:
Weizenkamp 9
Ort:
30926 Seelze
Stadtteil:
Seelze
Lage:
I. OG.
Verfügbar ab:
16.05.2026
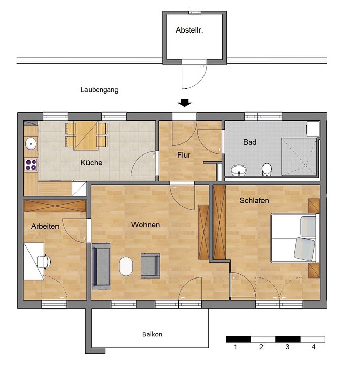
Wohnfläche:
87,68 m²
Anzahl Zimmer:
3
Zustand:
Gepflegt
Ausstattung:
Abstellraum Bad mit Dusche Bad mit Fenster Gas Laminatboden Personenaufzug Zentralheizung Kabel/Sat TV Einbauküche Seniorengerecht Waschmaschinenanschluß
Baujahr:
2012
Befeuerung:
Gas
Kontaktperson:
Julien Plohr
Kaltmiete:
745,00 €
Nebenkosten:
302,00 €
Heizkosten:
211,00 €
Genossenschaftsanteil:
2.475,00 €
Provisionspflichtig:
nein

Energieausweis

Ausweisart:
Verbrauchsausweis
erstellt:
2014
Baujahr Heizung:
2012
Wertklasse:
C
Primärer Energieträger:
Gas
Energieverbrauchkennwert:
98.4 kWh/(m²*a)

Erkunden Sie das Umfeld der Immobilie